4 PIECE - RIVIERA PALACE MAGNIFIQUEMENT RENOVÉ
Riviera Palace, Monaco

14 900 000 €

3 3 1 Riviera Palace

Informations

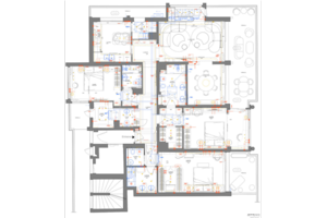
Situé dans le prestigieux quartier du Monte-Carlo à Monaco, ce superbe appartement de 223 m² offre une vue panoramique sur la mer et le célèbre Casino. Actuellement en cours de rénovation complète, il est réalisé avec des matériaux haut de gamme, marbre, parquet et mobilier sur mesure afin de créer un cadre de vie à la fois raffiné et luxueux.

Le bien comprend une place de parking, avec la possibilité d’acquérir jusqu’à trois places supplémentaires dans le même immeuble, idéal pour les amateurs de voitures.

Conçu pour allier élégance intemporelle et confort moderne, cet appartement d’exception offre un style de vie exclusif au cœur de Monaco.

Il se compose de trois grandes chambres, chacune disposant de sa salle de bain attenante et de son dressing, d’un vaste séjour double avec coin salle à manger ouvrant sur une grande terrasse offrant une vue spectaculaire sur la mer et le Casino, ainsi que d’un bar élégant. Une cuisine entièrement équipée avec buanderie privée, une chambre de service et des toilettes invités complètent cet ensemble raffiné.
Une option “clé en main” est proposée, permettant de livrer l’appartement entièrement meublé avec des pièces design soigneusement sélectionnées , canapés sur mesure “Made in Italy”, tables en marbre et décoration sophistiquée pour une installation immédiate dans un intérieur d’une élégance et d’un confort exceptionnels.

Emplacement

Résumé

Nb. pièces : 4 pièces
Nb. chambres : 3
Nb. S.D.B. : 3
Nb. parkings : 1
Type produit : Appartement
Pays : Monaco
Ville : Monaco
Quartier : Monte-Carlo
Immeuble : Riviera Palace
Superficie hab. : 181.20 m²
Superficie totale : 223.70 m²
Superficie terrasse : 42.50 m²

Plans

Nous contacter

Recherche

Search